| NIVEAU | PIÈCE | SURFACE |
Appartement neuf
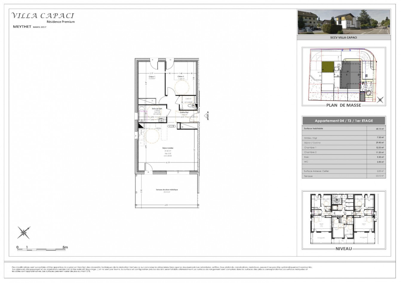
MEYTHET (74960)
- 68 m²
- 3 pièce(s)
- 2 chambre(s)
- NC
Meythet, dernier lot à saisir suite à un desistement! au 1er étage sur 2 étages dans une petite copropriété de 7 logemens avec ascenseur, sans voisin au dessus car terrasse du voisin, T3 de 68m2, terrasse de 23m2 au calme, expo sud-est, chauffage au gaz, volets electriques, espaces verts, frais de notaire réduits, livraison rapide: dernier semestre 2018, local vélo, garage possible en sus, la conception du batiment a fait l'objet de respect et d'attention en matière de normes environnementales, proche commerces et écoles, à voir au plus vite Jean-Charles Canet au 0616090669
* Honoraires charge vendeur.
Ce bien ne figure plus au catalogue car il a été vendu.
cette annonce à un ami
Veuillez réessayer à nouveau








